嗨呀!好久没有更新了。
这次的更新主要还是记录一下第一次装修的心路历程吧(当然了,还没开始进行呢,所以也是一篇不断更新的文章了。
以前总听说装修很费精力,水很深,无底洞其实没有啥深的体会,但是近来做了一些功课愈发感到这很真实😅
说回为什么装修吧,十八线城市的老家拆迁了而之前老家买的房子🏠从还没盖好到交房不动产权证拿到都好多年了一直空着。老妈要回家装修房子顺便也可以帮我做装修的监工(其实真实角色是大大的金主)加上6月头上,我“光荣”的离职有大把时间了,正所谓天时地利人和。
做了一些功课后,对房子的装修稍微有一些雏形了。
雏形
要装的房子我选择了一套离市区更近,户型面积更小的。
以下是初步的一些想法,可能会很乱,也可能会改变。
简约 日式木质风格
试问哪个阿宅不喜欢质朴而又温暖,让人想宅在家的设计呢?
即使不是御宅,但我到了家还是想宅在家。
看了一些木质风格,地板也好,柜子也好,真的是越看越发喜欢。

用E0级或F4星标准的建材 (至少是E1级别)
虽然不是非常着急入住,但是使用符合标准的建材同样重要。E0和F4严格来说不是中国标准,但是这两种标准可以达到装完即可入住的要求。 E1级别也是我的最低要求了,至少对人体不要那么有害。
五大件
以下五大件据说是现代装修前就应该思考清楚的。
-
管道新风系统
管道新风就是可以一年不开窗呼吸新鲜空气的系统,当然还有一个好处是可以解决家里积灰问题。 划掉了,不考虑。
主要由于阿卡林省空气质量普遍优良,而十八线老家也一样的,况且还是在4A级景点的生态公园湖边,前面又是赣江,好像没有上的必要? 咨询装修公司也说有但是少有人装,一般都地下室,停车库? (据我老妈说,选中央空调时候一并咨询新风系统对方也觉得可以但没必要?)

中央水处理系统(净水、软水)
好家伙,之前根本不知道中央水处理这玩意,阵势很庞大,瓶瓶罐罐。 简而言之,就是做全屋净水的。当然就包含了全屋的水系统了,软水对热水器,洗衣,洗头洗澡都有大大的好处,巴拉巴拉。 划掉了,不考虑。
主要还是十八线老家水质很nice,小小的家也容不下全屋净水这套庞大系统,到时候厨房做下RO反渗透净水就算了。
- 中央空调
中央空调我觉得还是有必要上的,美观不占地,小户型来个一拖三算下来比传统空调贵了一点点。 省电省心,还是决定上了。
- 智能家居
这个非常有必要了,算不上小米的脑残粉,但是小米生态圈真香,哎呀!
地暖
?这个直接划掉
全屋无主灯
无主灯设计好看呀。
主要电器品牌要一线或二线
这里安利一个APP,盖德排名,贼好用,选啥品牌不用愁,谁用谁知道! (盖德,请你看到后给我打钱!!!
客厅做成家庭影院
不解释了,直接上车吧。
要能有8人的聚会空间
难免别人来自己家做客嘛,这个得容纳得下。
其他
这里都是一些突然想到的一些点,记录一下。
- 鞋柜悬空
- 电视柜悬空
- 浴室柜悬空
- 阳台整体提高 榻榻米风
- 除厨房卫生间,上地板
地板也是做了一些功课,分实木地板、三层实木,多层实木复合地板、强化复合地板。 实木直接划掉了,装好后大多数时间没人住,我本身也赖得打理,还巨贵(留下了贫穷的泪水😭)。 三层实木我最中意,视觉,触觉都是木质的感觉,还不用经常打理保养。 强化复合地板也很不错的,耐磨耐刮防水还是这三种中最便宜的。就是触觉体验不咋好。
设计
预算也是要做一下的(虽然装修预算并没有什么卵用,往往是超了,但是是一个好习惯吧?
然后说房子的户型在现在看来并不是很好,扣完公摊面积接近70平还不到吧,情况就是这么一个情况了。
设计环节,问了装饰行业非常有经验的伟哥(我还记得她上大学前,说要以后给我设计新家)。 给我忠告两点:
- 选装修公司一定选本市排名前十的
- 贵有贵的道理
我铭记在心。(以后可能还要麻烦她了)
还有一句至理名言
贵不是它的缺点,是你的
(再一次不争气流下贫穷的泪水😭
我检索了一下前十的装修公司,并找了一家看起来靠谱的开始设计做方案。巧合的是他们做过同小区的方案,所以都不用来测量了。
我老妈在看建材家电的时候,也偶遇(?)了一个设计师,也很热心的上门免费量了我的房子,并很快给出了初版方案。

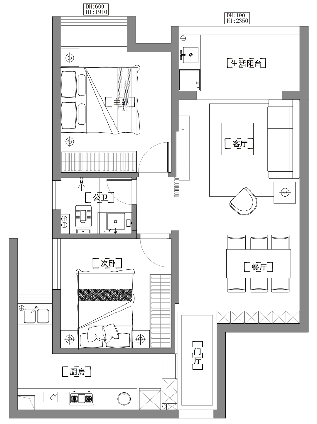
咋一看,对卫生间以及阳台的设计还是不大满意,阳台不在预期,以及厕所最不能忍受,厕所是真的小,要做干湿分离其实要开动十分脑筋的。我甚至有将次卧的门改位置,将卫生间洗漱台放出来的想法。因为看到网上有类似的方案还异常的完美?
进而跟设计师沟通下来做了一版是这样的。

当然左边鞋柜雏形是可以坐下的,然后右边墙可以掏一下,底部可以设计感应灯放临时穿的鞋子,上面还可以有镜子。
洗衣机还是移到小小洗衣房这边来,这样设计完全是逼着上一个牛逼的洗烘一体机(一般的洗烘一体据说对绒毛处理不佳,体验极差,还不如买一个洗衣一个干衣,叠着放。但是现在设计方案上叠着放,绝对影响厨房采光),暂时不考虑干衣了,因为使用频率太低,后续有需求再换吧。
嗯厕所还是有点奇怪呀,不过暂时这样吧。
我找的设计公司还没有出给我方案呢,先等那边的情况。
再综合考虑一下吧。
截至到这儿还是在纸上谈兵阶段,当然了,前面已经说过,这是一篇即将要更新非常久的文,以此来记录我的第一次装修体验。
当然也请有经验的装修大佬给我一点人生忠告!感谢!!